

南京總部:
地址: 南京市鼓樓區石頭城6號
電話: 025-86563385(市場部) 025-86503386(行政部)
設計基地:
地址: 江蘇省淮安市科技路10號
電話: 0517-80813309(市場部) 0517-80813310(行政部)

ONE
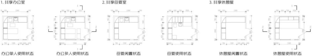
問題提出

現代生活引起了日常習慣的改變,人們的需求希望被即時滿足。例如快節奏的工作狀態經常需要我們在出差的路途中處理急事;哺乳期的母親為了自身的身心健康時常需要出去走走,散散心;出來旅游度假的人途中太累,需要臨時休息... 我們提出一個可移動的空間,集辦公、母嬰以及休憩為一體的空間理念,從三種情景可能會遇到的問題出發,如臨時辦公、臨時哺乳、臨時休憩等,希望創造出一個能適應多個場景,多種需求的微建筑。 它可以位于街道、廣場、服務區、城市樞紐中,運用現代技術打造輕松、高端、便捷的生活新模式,這種新型的模式以及對再生能源的使用方式將會有效的解決日常生活中帶來的能源壓力。以綠色為主題,集綠色環境、綠色材料、高效節能建造、環保能源以及便捷智能技術為一體,創造移動共享的新型空間。 TWO 概念創意 設想一個復制性強且適應多數場景的均勻尺度空間,賦予使用空間更多的創造性,置入更多實用性的未來科技。 ① 手機掃碼一鍵開門?。梢暬痑pp,掃碼開門,解放雙手) ② 智能電子屏,一鍵式情景化(可視化電子屏,功能包括能耗管理,溫度監控,視頻會議等;安裝語音助手,語音操作,方便快捷。) ③ 模式分類(根據需求,情景化分類,主要分為三大模塊:辦公模式、母嬰模式以及休憩模式,為更好的提供服務空間,場景應用模式各不相同,且各模式之間互不影響。) THREE 三大模式及行為分析 ① 共享辦公室模塊內置智能電子屏,利用現代智能AI技術,觸屏式選擇辦公場景,提供視頻會議,使辦公環境更加方便;配備可升降方凳,裝嵌在地板下,節省空間,且無需手動推拉;為提供更好的辦公環境,模塊內還增設可選擇性功能,如打印機、咖啡機等。 結合辦公需求,分為兩種模式:輕辦公模式以及會議模式 ② 共享母嬰室模塊內置智能電子屏,利用現代智能AI技術,觸屏式選擇母嬰場景,提供母嬰知識播放,更加人性化;母嬰工作臺外展開使用面積為5㎡,滿足臨時需求,且內部空間延伸,增加使用面積;休息椅由裝置彈出,方便使用;提供簡易洗手間,以及沖泡奶粉的直飲機。 結合母嬰配備標準:提供哺乳媽媽必備設施和相對私密 ③共享休憩屋模塊內置智能電子屏:利用現代智能AI技術,觸屏式選擇休憩場景,實時控溫,調節光感;床位由上側模塊裝置降落,爬梯由側邊彈出,且設置部分收納空間;休息椅由裝置彈出,方便使用;提供簡易洗手間。 FOUR 尺度研究 設計從人體工程學的角度出發,研究辦公模式、母嬰模式、休憩模式使用狀態下的平面布置和家具尺寸,讓微建筑在狹小的空間內滿足各式需求。 ①平面解讀 ②剖面解讀 ③結構解讀 FIVE 綠色共享 從材料-組裝-運輸-運維-回收的全生命周期出發,實現低成本、易組裝、便運輸、低能耗、可回收。 SIX 場景應用 











